Rif: 5717
OGGIONO
LECCO
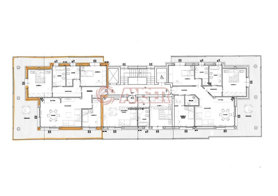
Luminoso quadrilocale mq. 128 ca. circondato da un meraviglioso e godibile terrazzo di mq. 65 ca. composto da: ampio open space con soggiorno / cucina con grandi vetrate che accedono al terrazzo coperto – tre ampie camere - doppi servizi finestrati – Le suddivisioni e le finiture interne sono totalmente personalizzabili con materiali a scelta dal capitolato predisposto dalla Direzione Lavori.
L'immobile fa parte di una moderna ed elegante palazzina altamente tecnologica, studiata per migliorare non solo l'ambiente urbano ma per offrire soluzioni abitative, oltre che completamente personalizzabili, proiettate al futuro, pensate e realizzate per adattarsi ad ogni esigenza.
La palazzina di tre piani oltre al piano terra è composta da n. 11 appartamenti con meravigliosi terrazzi coperti che circondano l'abitazione e giardini privati disposti su tre lati. La struttura architettonica è semplice ma raffinata, studiata in ogni dettaglio e in posizione privilegiata nel verde. Disponibilità di cantine, box singoli e doppi con basculanti elettrificate, posti auto privati.
Caratteristiche tecniche :
impianto di riscaldamento a pavimento alimentato da pompe di calore – predisposizione impianto di raffrescamento –
impianto fotovoltaico
ventilazione meccanica controllata -
serramenti interni in legno/esterni in alluminio triplo vetro che garantiscono alte prestazioni termo acustiche - avvolgibili in alluminio elettrificati – videocitofono - moderno ascensore dai box altamente tecnologico a basso consumo – ingresso carraio automatizzato -–
- Agevolazioni fiscali : Recupero 50% del costo di costruzione box.
GARANZIE: POLIZZA POSTUMA DECENNALE.
Le planimetrie pubblicate, così come le metrature e i render pubblicati sono del tutto indicativi e non potranno essere utilizzati come parte integrante nei contratti di vendita
L'immobile fa parte di una moderna ed elegante palazzina altamente tecnologica, studiata per migliorare non solo l'ambiente urbano ma per offrire soluzioni abitative, oltre che completamente personalizzabili, proiettate al futuro, pensate e realizzate per adattarsi ad ogni esigenza.
La palazzina di tre piani oltre al piano terra è composta da n. 11 appartamenti con meravigliosi terrazzi coperti che circondano l'abitazione e giardini privati disposti su tre lati. La struttura architettonica è semplice ma raffinata, studiata in ogni dettaglio e in posizione privilegiata nel verde. Disponibilità di cantine, box singoli e doppi con basculanti elettrificate, posti auto privati.
Caratteristiche tecniche :
impianto di riscaldamento a pavimento alimentato da pompe di calore – predisposizione impianto di raffrescamento –
impianto fotovoltaico
ventilazione meccanica controllata -
serramenti interni in legno/esterni in alluminio triplo vetro che garantiscono alte prestazioni termo acustiche - avvolgibili in alluminio elettrificati – videocitofono - moderno ascensore dai box altamente tecnologico a basso consumo – ingresso carraio automatizzato -–
- Agevolazioni fiscali : Recupero 50% del costo di costruzione box.
GARANZIE: POLIZZA POSTUMA DECENNALE.
Le planimetrie pubblicate, così come le metrature e i render pubblicati sono del tutto indicativi e non potranno essere utilizzati come parte integrante nei contratti di vendita
Consistenze
Descrizione | Superficie | Sup. comm. |
---|---|---|
Principali | ||
Immobile - 1° piano | 128 Mq | 128 Mqc |
Terrazza - 1° piano | 56 Mq | 22 Mqc |
Totale | 150 Mqc |