Rif: 5715
ARGEGNO
COMO
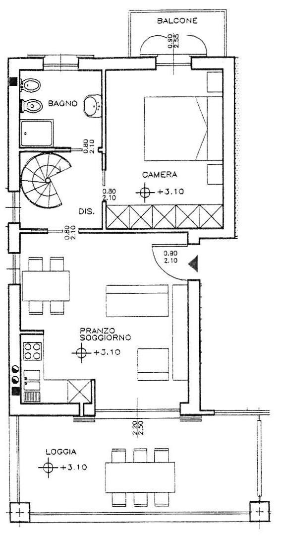
Classe “B” – Spettacolare vista lago appartamento con terrazzo coperto in Residence con piscina, solarium attrezzato e magnifico giardino piantumato condominiale. Stupenda posizione soleggiata di fronte all'Isola Comacina, Bellagio e Punta Balbianello; dal Residence sono raggiungibili a piedi il Borgo storico con la sua caratteristica piazzetta sul lago, l'imbarcadero per usufruire dei battelli e dell'aliscafo che collegano tutte le località del lago di Como e la funivia di Pigra, che porta in Val d'Intelvi. L' appartamento N. 7B è composto da: piano primo/ultimo: soggiorno/cottura con vetrata scorrevole sul terrazzo panoramico – camera matrimoniale - bagno – Piano sottotetto : camera matrimoniale con bagno - terza camera - l'immobile è completo di arredo ed è corredato di ogni accessorio. Caratteristiche tecniche : riscaldamento con pannelli radianti a pavimento - pannelli solari per acqua calda – termostato per gestione autonoma impianto - video citofono - impianto anti intrusione – contatore acqua autonomo -. Disponibilità di n. 2 box singoli. - Parcheggio esterno riservato al Residence - Spese accessorie : IVA di legge - Atto Notarile - Agevolazioni fiscali: 50% del costo di costruzione del box di pertinenza - Le metrature e le planimetrie sono indicative e non potranno essere utilizzate come parte integrante in un eventuale contratto di vendita.
Consistenze
| Descrizione | Superficie | Sup. comm. |
|---|---|---|
| Principali | ||
| Immobile - 1° piano | 120 Mq | 120 Mqc |
| Totale | 120 Mqc | |
