Rif: 5713
ARGEGNO
COMO
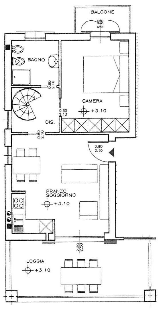
Classe “B” – In Residence con piscina, solarium vista lago appartamento n. 11c mq. 110 ca con terrazzo. Stupenda posizione soleggiata di fronte all'Isola Comacina e a Bellagio. Il lago, il centro paese, l'imbarcadero e la funivia sono raggiungibili a piedi (200mt) L' Appartamento è composto da: piano primo/ultimo: soggiorno/cottura con vetrata scorrevole sul terrazzo panoramico – camera matrimoniale - bagno – Piano sottotetto : camera matrimoniale con bagno - terza camera - L'appartamento è completo di moderno arredo su misura e corredato di ogni accessorio – Disponibilità box singolo o doppio - Caratteristiche tecniche : riscaldamento con pannelli radianti a pavimento - pannelli solari per acqua calda – termostato per gestione autonoma impianto - video citofono - impianto anti intrusione – contatore acqua autonomo -. Disponibilità di n. 2 box singoli. - Parcheggio esterno riservato al Residence - Spese accessorie : IVA di legge - Atto Notarile - Agevolazioni fiscali: 50% del costo di costruzione del box di pertinenza - Le metrature e le planimetrie sono indicative e non potranno essere utilizzate come parte integrante in un eventuale contratto di vendita.
Consistenze
| Descrizione | Superficie | Sup. comm. |
|---|---|---|
| Principali | ||
| Immobile - 1° piano | 120 Mq | 120 Mqc |
| Totale | 120 Mqc | |
