Rif: 5702
MISSAGLIA
LECCO
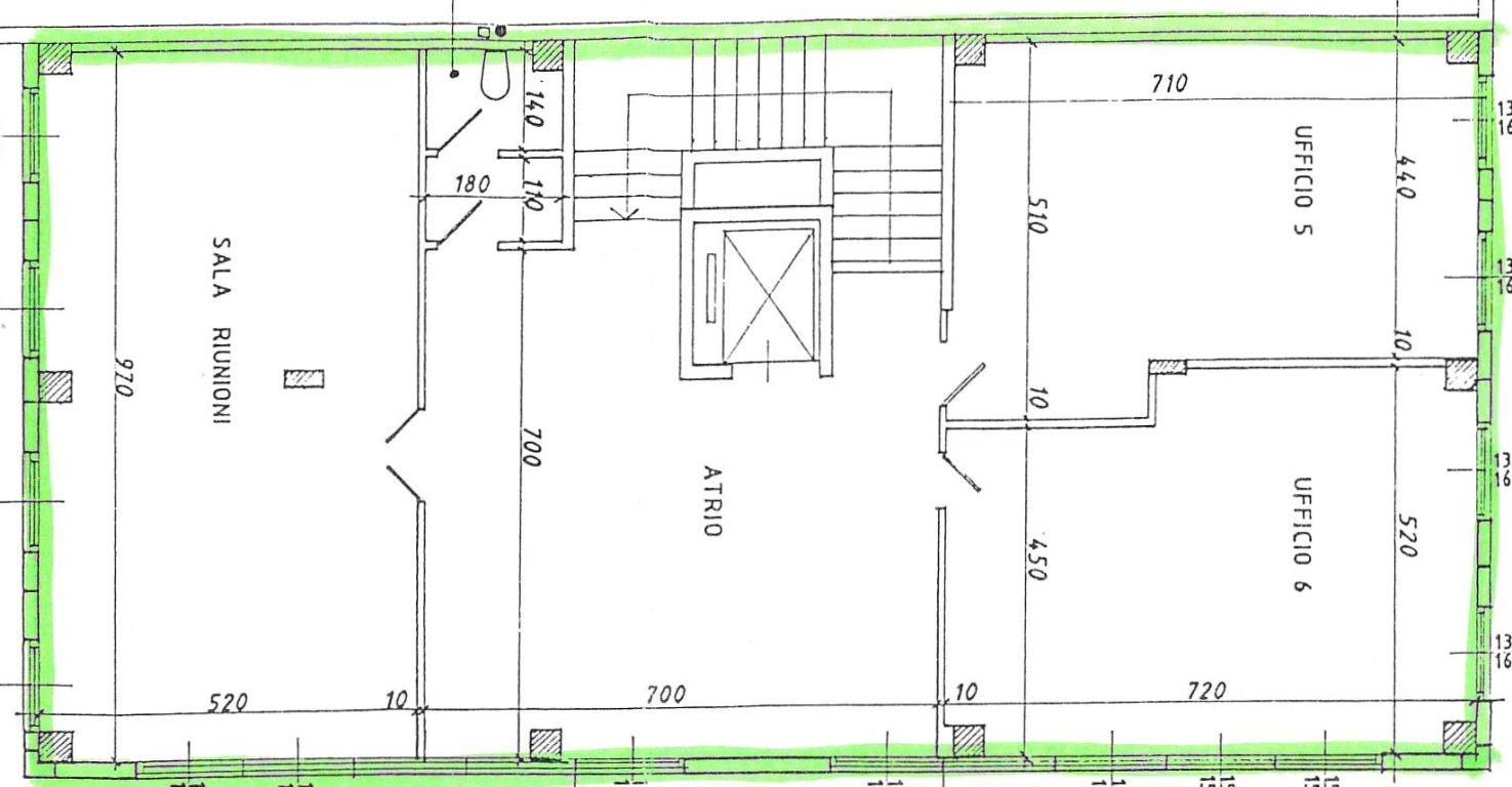
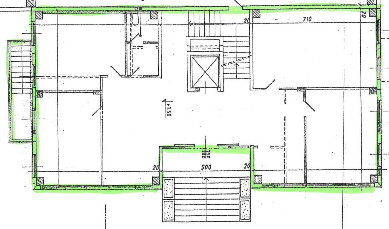
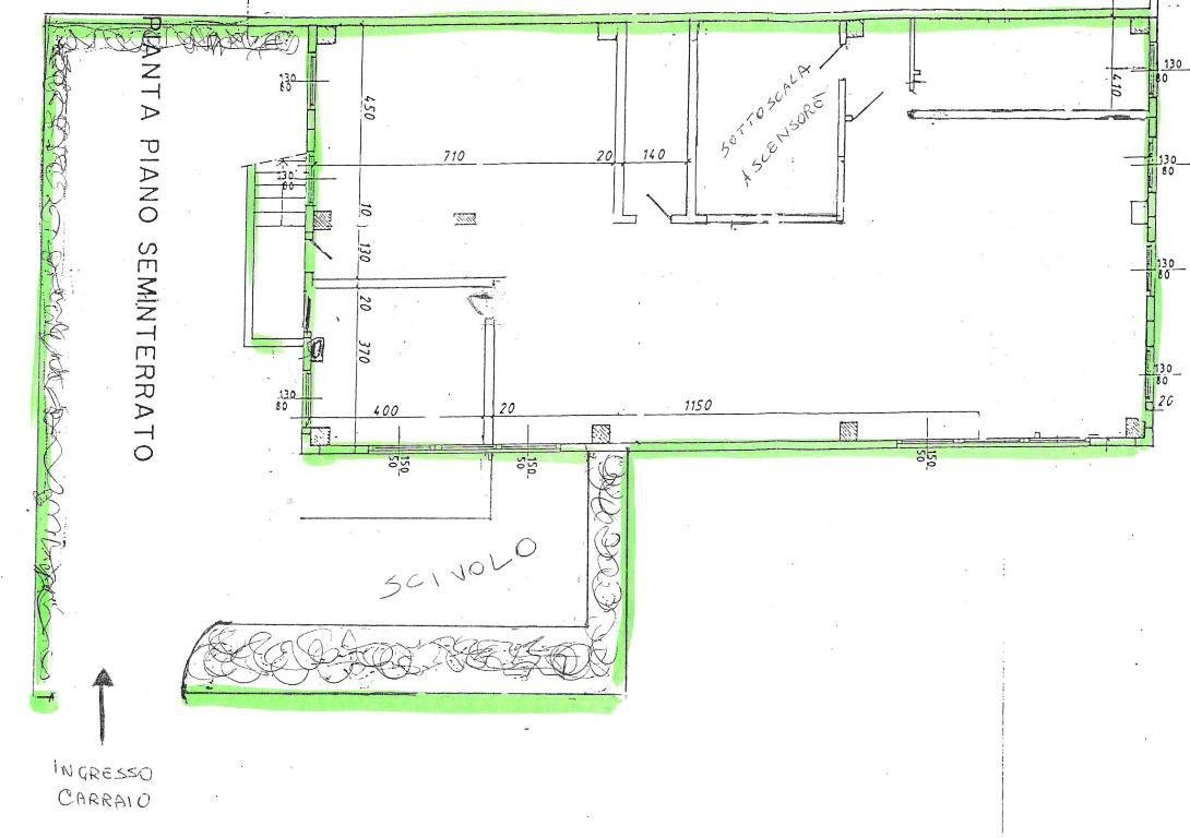
Immobile mq. 600 ca.: mq. 400 a destinazione commerciale (UFFICI – NEGOZI –RISTORANTE) disposto su due livelli collegati da ascensore – mq. 200 ca. piano semi interrato a destinazione magazzino/laboratorio h. 3,20 con accesso carraio autonomo. Le suddivisioni interne così come i materiali di finitura sono completamente personalizzabili. Area esterna privata piantumata e recintata con cancelli pedonali e carrai. Tutti i piani sono collegati da ascensore/montacarichi. La superficie è frazionabile : l'area commerciale può essere venduta separatamente dal laboratorio in quanto hanno accessi indipendenti. Il prezzo di vendita pubblicato si riferisce all'immobile nello stato di fatto.
Opere già realizzate: predisposizione impianti: elettrico, idraulico, riscaldamento, raffrescamento, allacciamenti, bagni, locali tecnici, intonaci, predisposizione sottofondi pavimenti - scivolo di accesso finito a massello in cemento – Parcheggi già realizzati come da disposizioni delle competenti Autorità.
L'immobile è situato nella zona industriale vicino alle principali vie di comunicazione e alla tangenziale – Le metrature e le planimetrie sono indicative e non potranno essere utilizzate come parte integrante in un eventuale contratto di vendita -
Opere già realizzate: predisposizione impianti: elettrico, idraulico, riscaldamento, raffrescamento, allacciamenti, bagni, locali tecnici, intonaci, predisposizione sottofondi pavimenti - scivolo di accesso finito a massello in cemento – Parcheggi già realizzati come da disposizioni delle competenti Autorità.
L'immobile è situato nella zona industriale vicino alle principali vie di comunicazione e alla tangenziale – Le metrature e le planimetrie sono indicative e non potranno essere utilizzate come parte integrante in un eventuale contratto di vendita -
Consistenze
| Descrizione | Superficie | Sup. comm. |
|---|---|---|
| Principali | ||
| Altro - piano terra | 600 Mq | 600 Mqc |
| Totale | 600 Mqc | |
