Rif: 5709
CASATENOVO
LECCO
VILLA SINGOLA completamente indipendente in zona centrale residenziale, tranquilla e panoramica, circondata da giardini e parchi, con tutti i servizi e le scuole raggiungibili a piedi; giardino pianeggiante mq. 630 ca. con predisposizione piscina.
La vendita può essere effettuata ad immobile finito o da ultimare e il prezzo esposto si riferisce alla villa nello tato di fatto in cui si trova (da ultimare)
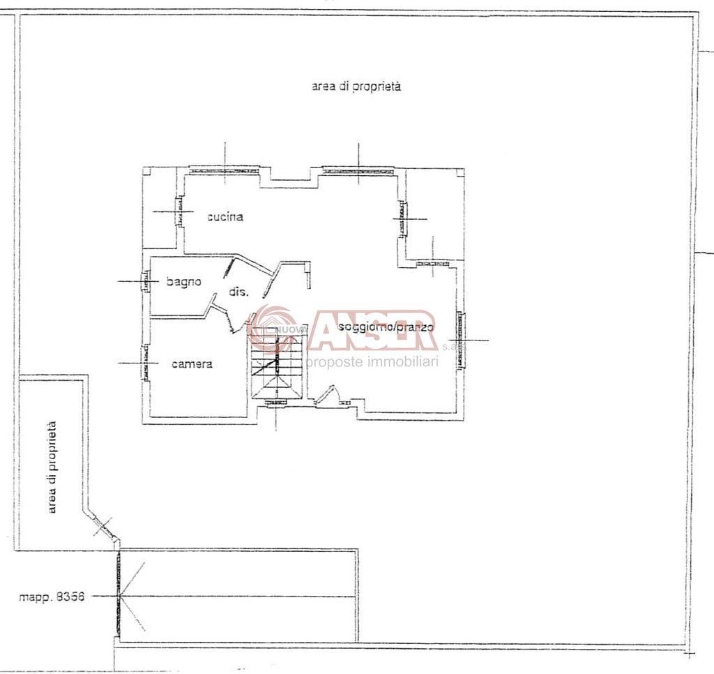
La villa è così composta : piano terra mq. 110 ca.: luminoso salone con ampie vetrate panoramiche, grande cucina aperta ma divisibile dal soggiorno, disimpegno con vestiaire, camera matrimoniale, bagno , ampio porticato godibile; piano primo mansardato abitabile mq. 100 ca.: camera matrimoniale con cabina armadio e bagno padronale, altre due camere, bagno, terrazzo; tutti i bagni sono finestrati; piano interrato mq. 150 ca. locale hobby con predisposizione camino, lavanderia / stireria, locale caldaia, cantina; autorimessa mq. 66 con portone automatizzato. Accesso carraio con cancello elettrico. AGEVOLAZIONE FISCALE: 50% sul costo di costruzione del box per l'acquirente.
CARATTERISTICHE TECNICHE: Predisposizione di: impianto riscaldamento con pannelli radianti a pavimento programmabile a zone, pannelli solari per la produzione di acqua calda, impianto di raffrescamento, impianto di aspirazione polveri a muro, impianto anti intrusione. Tutte le predisposizioni sopra elencate sono già state eseguite e incluse nel prezzo.
OPERE MANCANTI in quanto personalizzabili finiture interne pavimenti – scala - rivestimenti – porte – sanitari – finitura piscina – facciata –
Le metrature sono del tutto indicative e non potranno essere utilizzate come parte integrante in un eventuale contratto di vendita. Le planimetrie pubblicate sono esclusivamente esemplificative della possibilità di arredo e non rappresentano lo stato di fatto.
La vendita può essere effettuata ad immobile finito o da ultimare e il prezzo esposto si riferisce alla villa nello tato di fatto in cui si trova (da ultimare)
La villa è così composta : piano terra mq. 110 ca.: luminoso salone con ampie vetrate panoramiche, grande cucina aperta ma divisibile dal soggiorno, disimpegno con vestiaire, camera matrimoniale, bagno , ampio porticato godibile; piano primo mansardato abitabile mq. 100 ca.: camera matrimoniale con cabina armadio e bagno padronale, altre due camere, bagno, terrazzo; tutti i bagni sono finestrati; piano interrato mq. 150 ca. locale hobby con predisposizione camino, lavanderia / stireria, locale caldaia, cantina; autorimessa mq. 66 con portone automatizzato. Accesso carraio con cancello elettrico. AGEVOLAZIONE FISCALE: 50% sul costo di costruzione del box per l'acquirente.
CARATTERISTICHE TECNICHE: Predisposizione di: impianto riscaldamento con pannelli radianti a pavimento programmabile a zone, pannelli solari per la produzione di acqua calda, impianto di raffrescamento, impianto di aspirazione polveri a muro, impianto anti intrusione. Tutte le predisposizioni sopra elencate sono già state eseguite e incluse nel prezzo.
OPERE MANCANTI in quanto personalizzabili finiture interne pavimenti – scala - rivestimenti – porte – sanitari – finitura piscina – facciata –
Le metrature sono del tutto indicative e non potranno essere utilizzate come parte integrante in un eventuale contratto di vendita. Le planimetrie pubblicate sono esclusivamente esemplificative della possibilità di arredo e non rappresentano lo stato di fatto.
Consistenze
| Descrizione | Superficie | Sup. comm. |
|---|---|---|
| Principali | ||
| Immobile - piano terra | 110 Mq | 110 Mqc |
| Esterno - piano terra | 15 Mq | 4 Mqc |
| Immobile - 1° piano | 100 Mq | 100 Mqc |
| Terrazza - 1° piano | 25 Mq | 8 Mqc |
| Altro - piano interrato | 150 Mq | 75 Mqc |
| Box/Garage - seminterrato | 66 Mq | 33 Mqc |
| Giardino/Resede | 630 Mq | 63 Mqc |
| Totale | 393 Mqc | |
