Rif: 5615
CASATENOVO
LECCO
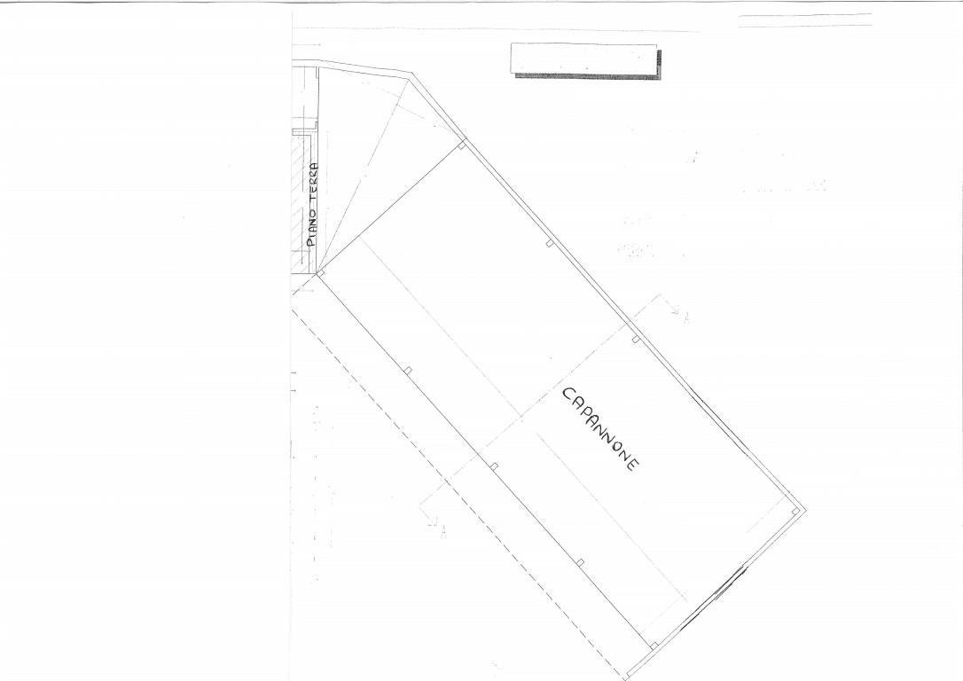
Monticello B.za - pochi km da Casatenovo - Capannone mq. 230 ca.- H. media mt. 4,50 con antistante area di ca. mq. 1300,00 –
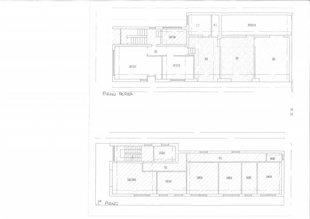
N. 3 autorimesse h. 3,05 per un totale di 115 mq. ca. con basculanti elettriche nuove e accessi autonomi –
Piano rialzato uffici mq. 70 ca. con servizi e ingresso indipendente -
Fronte strada comodo con le principali vie di comunicazione.
Vendita da privato assoggettata a tassa di registro con risparmio fiscale – no IVA –
Fa parte della proprietà appartamento mq. 150 ca. al piano primo tutto su unico livello con accesso indipendente: ingresso, ampio e luminoso soggiorno con terrazzo, grande cucina abitabile, tre camere matrimoniali, studio, due ampi bagni finestrati. L'abitazione è circondata da balconi e terrazzo per mq. 40 ca. - Piano terra: locale lavanderia, cantina, bagno. Lastrico solare/giardino pensile di mq.50 ca - Scala interna di collegamento con recente montascale elettrico -
Stabile in ottime condizioni recentemente ristrutturato: serramenti – canali – tetto – cappotto – pavimentazione piazzale.
Le metrature sono del tutto indicative e non potranno essere utilizzate come parte integrante in un eventuale contratto di vendita.
N. 3 autorimesse h. 3,05 per un totale di 115 mq. ca. con basculanti elettriche nuove e accessi autonomi –
Piano rialzato uffici mq. 70 ca. con servizi e ingresso indipendente -
Fronte strada comodo con le principali vie di comunicazione.
Vendita da privato assoggettata a tassa di registro con risparmio fiscale – no IVA –
Fa parte della proprietà appartamento mq. 150 ca. al piano primo tutto su unico livello con accesso indipendente: ingresso, ampio e luminoso soggiorno con terrazzo, grande cucina abitabile, tre camere matrimoniali, studio, due ampi bagni finestrati. L'abitazione è circondata da balconi e terrazzo per mq. 40 ca. - Piano terra: locale lavanderia, cantina, bagno. Lastrico solare/giardino pensile di mq.50 ca - Scala interna di collegamento con recente montascale elettrico -
Stabile in ottime condizioni recentemente ristrutturato: serramenti – canali – tetto – cappotto – pavimentazione piazzale.
Le metrature sono del tutto indicative e non potranno essere utilizzate come parte integrante in un eventuale contratto di vendita.
